HB Nord - Gleisarena
BAU
Factbox
Auftraggeber: Schweizerische Bundesbahnen SBB
Auftragnehmer: PORR SUISSE AG
Architekt: Made in Sàrl, Genf
Auftragsart: Totalunternehmer
Projektart: Hochbau . Büro
Leistungsumfang: Planung und Errichtung eines siebengeschossigen Kopf- und eines sechsgeschossigen Längsbaus
Auftragsvolumen: CHF 40 Mio. (EUR 35,9 Mio.)
Baubeginn: 05/2017
Bauende: 02/2020
Im Herzen von Zürich, unmittelbar neben dem Hauptbahnhof, plant und errichtet die PORR als Totalunternehmerin das Büroprojekt „Gleisarena“.
Ein beengtes Baufeld, schwierige Gründungsverhältnisse, der laufende Bahnbetrieb sowie die eigens für dieses Projekt entwickelte, zweifach gekrümmte Glasbausteinfassade machten die „Gleisarena“ für die PORR zu einer echten Herausforderung.
Im Auftrag der SBB errichtet die PORR seit Mai 2017 an der Zürcher Zollstraße das Büro- und Geschäftshaus „Gleisarena“. Das Projekt besteht aus einem siebengeschossigen Kopf- und einem sechsgeschossigen Längsbau mit einem gemeinsamen Untergeschoss. Insgesamt umfasst das Projekt 9.000 m² Dienstleistungsflächen in den Obergeschossen und 850 m² Gastronomie- und Retailflächen in den Erdgeschosszonen. Beide Gebäude erfüllen die Energiekennwerte des Schweizer Niedrigenergiestandards Minergie-P-Eco und die Kriterien für ein DGNB-Zertifikat in Gold. Im Rahmen des Projekts muss auch ein bereits vorhandener Fußgänger- und Medientunnel um eine Zivilschutzanlage ergänzt und die „Gleisarena“ mit dem Untergeschoss an das ebenfalls von der PORR errichtete Projekt „Gleistribüne“ und die Passage des Zürich Hauptbahnhofs angeschlossen werden.
Kaum Platz für die Baugrube

Aufgrund der äußerst beengten Platzverhältnisse entschied sich die PORR für eine ausgesteifte Spundwand als Baugrubenabschluss. Aufbauend auf den Erfahrungen aus anderen Baustellen der gegenüberliegenden „Europaallee“ konnte die PORR die Spundwände im Sihlschotter einvibrieren. Die Spundwände wurden mit horizontalen Stahlträgern, sogenannten Longarinen, in Flucht gehalten und gegen die Schlitzwand der bestehenden Tunnelkonstruktion gesteift. Diese Konstruktion machte eine Rückverankerung mit Erdankern überflüssig. Dadurch konnten erhebliche Kosten durch das Setzen und das spätere Ziehen der Anker eingespart werden. Nach Fertigstellung der Untergeschosse wurde der Baugrubenverbau vollständig zurückgebaut.
Aufgrund eines unterquerenden Fussgänger- und Medientunnels muss die Gebäudestatik die Lasten sowohl in das Tunnelbauwerk als auch in den Boden ableiten.
Teamleiter, PORR SUISSE AG
Komplexe Gründung neben Tunnelbauwerk

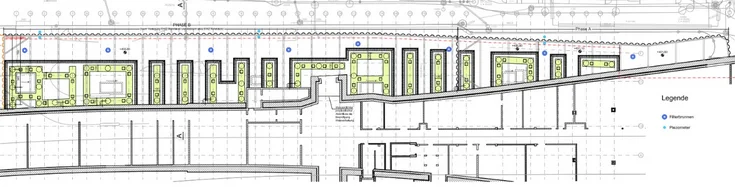
Die „Gleisarena“ wird auf einem Grundstück errichtet, das zu weiten Teilen von einem Fußgänger- und Medientunnel unterquert wird. Deshalb muss die Gebäudestatik die Lasten sowohl in das Tunnelbauwerk als auch in den Boden ableiten. Um zu verhindern, dass diese verschiedenen Gründungsvoraussetzungen zu unterschiedlichen Setzungen führen, hat die PORR diverse Maßnahmen getroffen. So wurden unter den Bauteilen, die die Lasten in den Boden ableiten, insgesamt 49 Bohrpfähle mit Durchmessern zwischen 100 und 120 cm errichtet. Zur gleichmäßigeren Lasteinleitung und zur Aufnahme von Horizontallasten wie Wind oder Erdbeben wurden die Pfahlköpfe mit Riegeln gruppenweise untereinander verbunden.
Die 50 bis 80 cm dicke Bodenplatte des Untergeschosses ist entlang der Außenwand flach fundiert. Im restlichen Bereich ist sie wegen der hohen Lastkonzentrationen auf Bohrpfähle gelagert. Dadurch können Setzungen und Setzungsunterschiede der Tunnelkonstruktion wesentlich vermindert werden.
Die Abmessungen der Pfahlriegel wurden so gewählt, dass eine ausreichende Lagerfläche zur Aufnahme der Gebäudelasten mittels elastischer Lager vorhanden ist.
Horizontale Lastverteilung
Die Erdgeschossplatte hat eine Stärke von 70 cm bis 100 cm. Sie liegt zur Lastverteilung und zur Aufnahme von Horizontallasten flächig auf der Tunneldecke auf. In den Obergeschossen sind die Stützen schräg gestellt, weshalb hier die Horizontallasten durch die Wände der Kernbereiche und die Stirnfassaden aufgenommen und von diesen in die Bodenplatte eingeleitet werden. Durch Nocken werden die Horizontallasten in die Bohrpfähle und von diesen in den Boden weitergegeben.
Die unmittelbare Nähe zum Hauptbahnhof und das schmale, lange Baufeld haben die Baustelle enorm eingeengt. Dazu kommen die bestehenden Tunnel, die querende Stromversorgung und die äusserst schwierigen Gründungsverhältnisse.
Teamleiter, PORR SUISSE AG
Elastische Gebäudelagerung

Die „Gleisarena“ liegt in unmittelbarer Nähe des Züricher Hauptbahnhofs mit zahlreichen auf mehrere Geschosse verteilten Gleisanlagen. Zur Kompensation der daraus entstehenden Erschütterungen und Schallentwicklungen ist die Sohle des Gebäudes von der Gründungskonstruktion durch eine Lage aus Elastomeren, also elastisch verformbaren Kunststoffen, getrennt.
Um die Schall- und Erschütterungsentkopplung mit den Elastomeren umsetzen zu können, sind flächige Auflager notwendig. Die Auflagerung auf die Pfahlköpfe erfolgt durch die Verbindung mittels Fundamentriegeln. Diese Riegel weisen eine ausreichend große Oberseite auf, um die zulässige Druckspannung für das gewählte Elastomer zu gewährleisten.
Die Elastomerlager werden über die Decke der Tunnelkonstruktion sowie über die Pfahlriegel verlegt. Sie dienen zur Aufnahme der vertikalen Lasten aus den Obergeschossen, wobei die Druckspannung unter permanenten Lasten im Gebrauchszustand bis 1500 kN/m² beträgt. In den Bereichen mit geringerer Lasteinleitung kam eine Flachgründung zum Einsatz, die auf weiche Elastomerlager aufgelagert wurde.
Die Horizontallasten, resultierend aus Wind und Erdbeben, werden über die Pfahlriegel in den Baugrund eingeleitet. Dafür wurde die Bodenplatte des Untergeschosses im Bereich der Pfahlriegel mit Nocken ausgestattet, die in die Pfahlriegel eingreifen. Die Berührungsflächen dieser Horizontallager wurden ebenfalls mit einem Elastomer ausgestattet.
Redundante Rohrblockumverlegung

Der Grundriss des Gebäudes machte es nötig, einen Rohrblock mit Elektroleitungen für den Züricher Hauptbahnhof und mehreren Lichtwellenleitern verschiedener Telekommunikationsanbieter zu verlegen. Da es sich um die Hauptstromversorgung des Züricher Hauptbahnhofs handelt und dies bei laufendem Betrieb des Bahnhofs stattfand, musste die Umverlegung redundant erfolgen. Die Stromversorgung aus der Trafostation Zollstraße wurde auf zwei andere bestehende Trafostationen umgeschaltet. Danach konnte die Trafostation Zollstraße außer Betrieb genommen und somit der bestehende Rohrblock stillgelegt werden. Damit waren die Voraussetzungen geschaffen, den neu installierten Rohrblock in das Stromnetz zu integrieren. Nach Abschluss der Arbeiten wurde der Bahnhof wieder über die Trafostation Zollstraße mit Elektrizität versorgt.
Fazit
Das Projekt „Gleisarena“ hat die PORR vor einige Herausforderungen gestellt, die aber allesamt souverän gemeistert wurden. Die unmittelbare Nähe zum Hauptbahnhof und das schmale, lange Baufeld haben die Baustelle enorm eingeengt. Dazu kommen die bestehenden Tunnel, die querende Stromversorgung und die äußerst schwierigen Gründungsverhältnisse. Und schließlich wird das Gebäude an der Fassade zur Gleisanlage des Hauptbahnhofs mit einer spektakulären, zweifach gekrümmten Glasbausteinfassade auf einer Metall-Unterkonstruktion ausgestattet. Die Realisierung dieser komplexen und weltweit einzigartigen Konstruktion wird ebenfalls durch die PORR erfolgen.
Technische Daten
- Gebäudevolumen
52.000 m³
- Verbauter Beton
10.200 m³
- Bruttogeschossfläche
14.000 m²
- Nutzung
9.900 m²
- Aushub
13.000 m³
- Bohrpfähle
49
- Bewehrungsstahl
1.500 t
- Gewölbefassade
1.500 m²
- Pfosten – Riegelfassade
215 m²